Assenstraat 16 - Deventer
Verhuurd
Ruim en licht 4-kamer appartement in een prachtig monumentaal pand. Het pand is in 2019 geheel gerenoveerd en biedt een combinatie van historische charme en hedendaags wooncomfort.
Indeling:
Eigen entree op de begane grond.
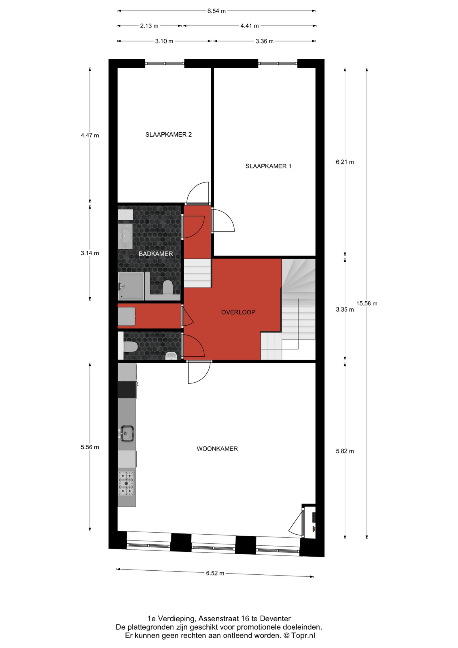
De woning is gelegen op de eerste en tweede verdieping.
Indeling:
Ruime hal, royale woonkamer met open keuken aan de voorzijde. De keuken is voorzien van een inductiekookplaat, afzuigkap, vaatwasser, inbouw oven/magnetron en een koel/vriescombinatie.
Toilet met fonteintje, aparte wasruimte, badkamer voorzien van wastafel, inloopdouche en 2e toilet,
1 slaapkamer groot ca 14 m2 en 1 slaapkamer groot ca. 21 m2.
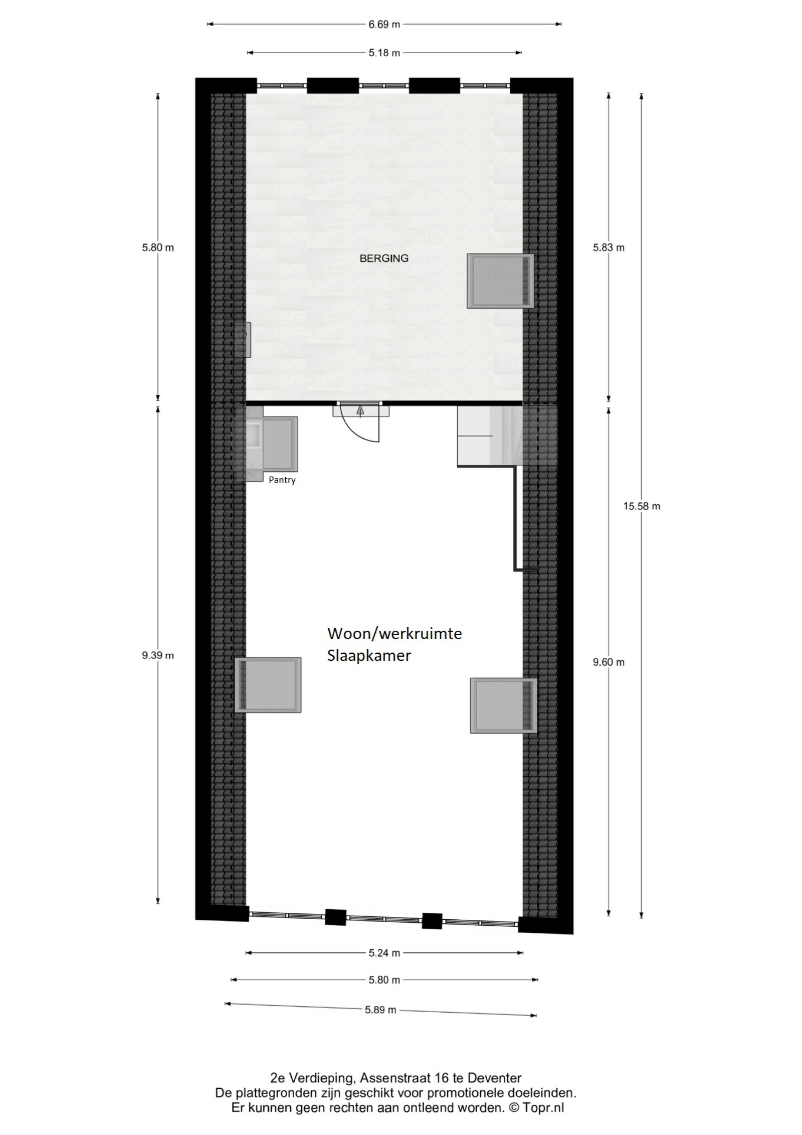
2e verdieping:
Riante lichte woon-/werkruimte (ca. 45 m2) met fraaie houten balken en een pantry. Deze ruimte kan gebruikt worden als kantoor, slaapkamer of tweede woonkamer.
Tevens bevindt zich op de 2e verdieping een zeer ruime bergzolder.
De woning is voorzien van achterzetbeglazing.
Fietsen kunnen worden gestald in de gezamenlijke fietsenrekken in de gemeentelijke tuin achter het pand.

