Bergschild 24 - Deventer
Verhuurd
Sfeervol appartement op de begane grond.
Gezamenlijke entree met nr. 26.
Indeling:
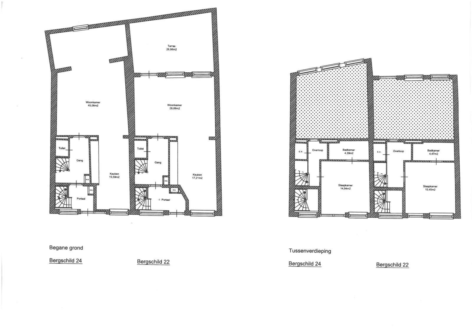
Hal, toilet, ruime woonkamer met open keuken. Aan de achterzijde van de woonkamer is een apart gedeelte.
De keuken, gelegen aan de voorzijde van het pand, is voorzien van een gaskookplaat, afzuigkap en een inbouwoven.
1e verdieping: overloop, kast met CV ketel, slaapkamer ca. 4 x 4 m., badkamer met douche, wastafel en aansluiting voor de wasmachine.
In de kelder van het pand bevindt zich de berging. Tevens is hier ruimte voor de stalling van de fiets (bereikbaar via de Bokkingshang).
Lees meer
Naar collectie
Oppervlakte
ca. 80 m2
Indeling
Aantal kamers: 3
Monumentale status
Rijks monument
