Bergstraat 26 - Deventer
Verhuurd
Sfeervol appartement op de 2e verdieping gelegen aan de Bergstraat.
Algemene entree samen met nr. 24.
Indeling:
In de hal, begane grond, zit een deur welke toegang verschaft tot de kelderuimte.
2e verdieping:
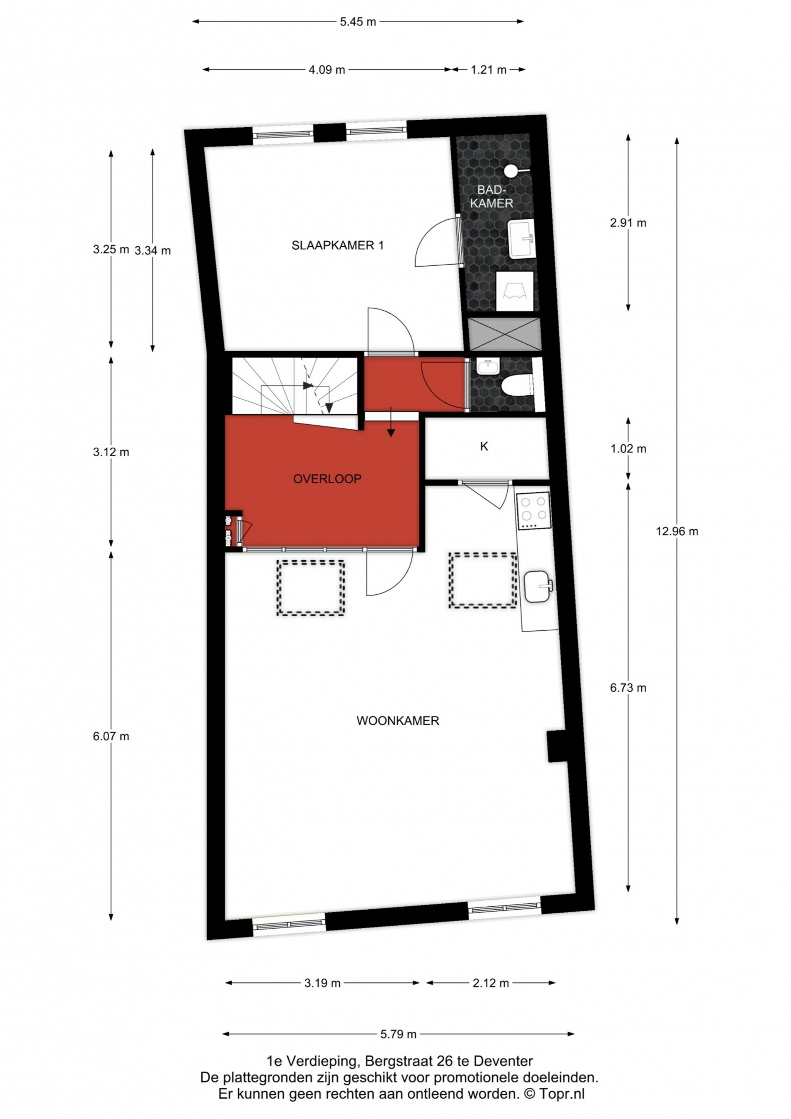
Hal, toilet, ruime lichte woonkamer met open keuken.
In de gehele woonkamer is de gebintconstructie in de nok zichtbaar, wat zorgt voor de historische uitstraling.
De keuken is voorzien van een gaskookplaat met afzuigkap en een ruime inbouwkast.
Aan de achterzijde van de woning bevindt zich de slaapkamer (ca. 4 x 3,5) en aansluitend de badkamer, welke voorzien is van een douche, wastafel en aansluiting voor de wasmachine.
Vanuit de hal is de vide te bereiken middels een vaste trap.
De vide bestaat uit een voorzolder en een afgesloten (zolder)kamer.
In de kelder van het pand bevindt zich bergruimte.
