Papenstraat 24 - Deventer
Verhuurd
Prachtige monumentale woning met tuin en 3 slaapkamers.
Indeling:
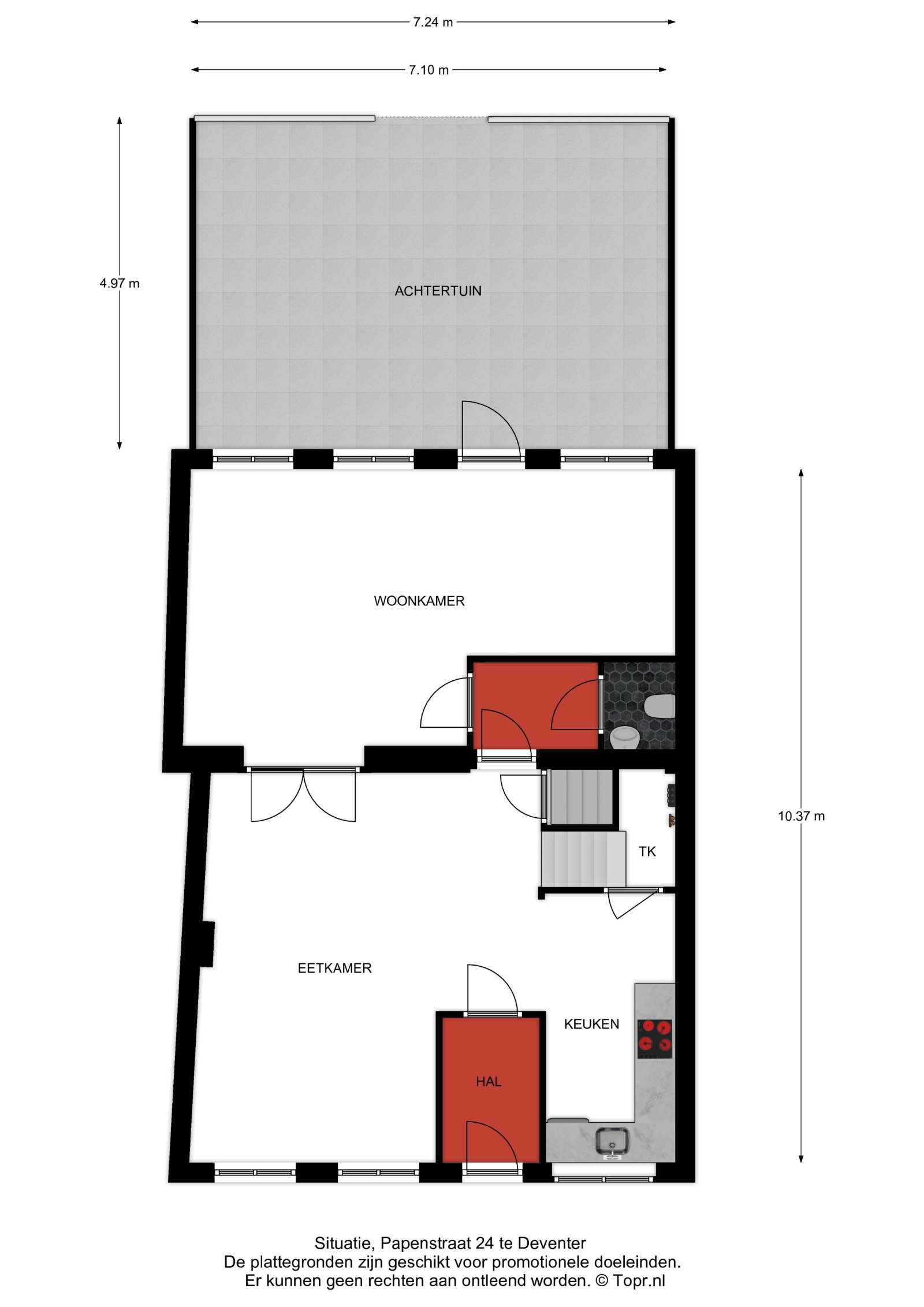
Entree met originele granito vloer, open keuken voorzien van vaatwasser, gaskookplaat en afzuigkap.
Naast de trap bevindt zich de toegang tot de kelder.
Aansluitend aan de keuken is de ruime eetkamer met veel lichtinval door de hoge raampartijen met diepe vensterbanken.
Via ensuite deuren is de zitkamer aan de achterzijde bereikbaar, van waaruit direct toegang is tot de tuin.
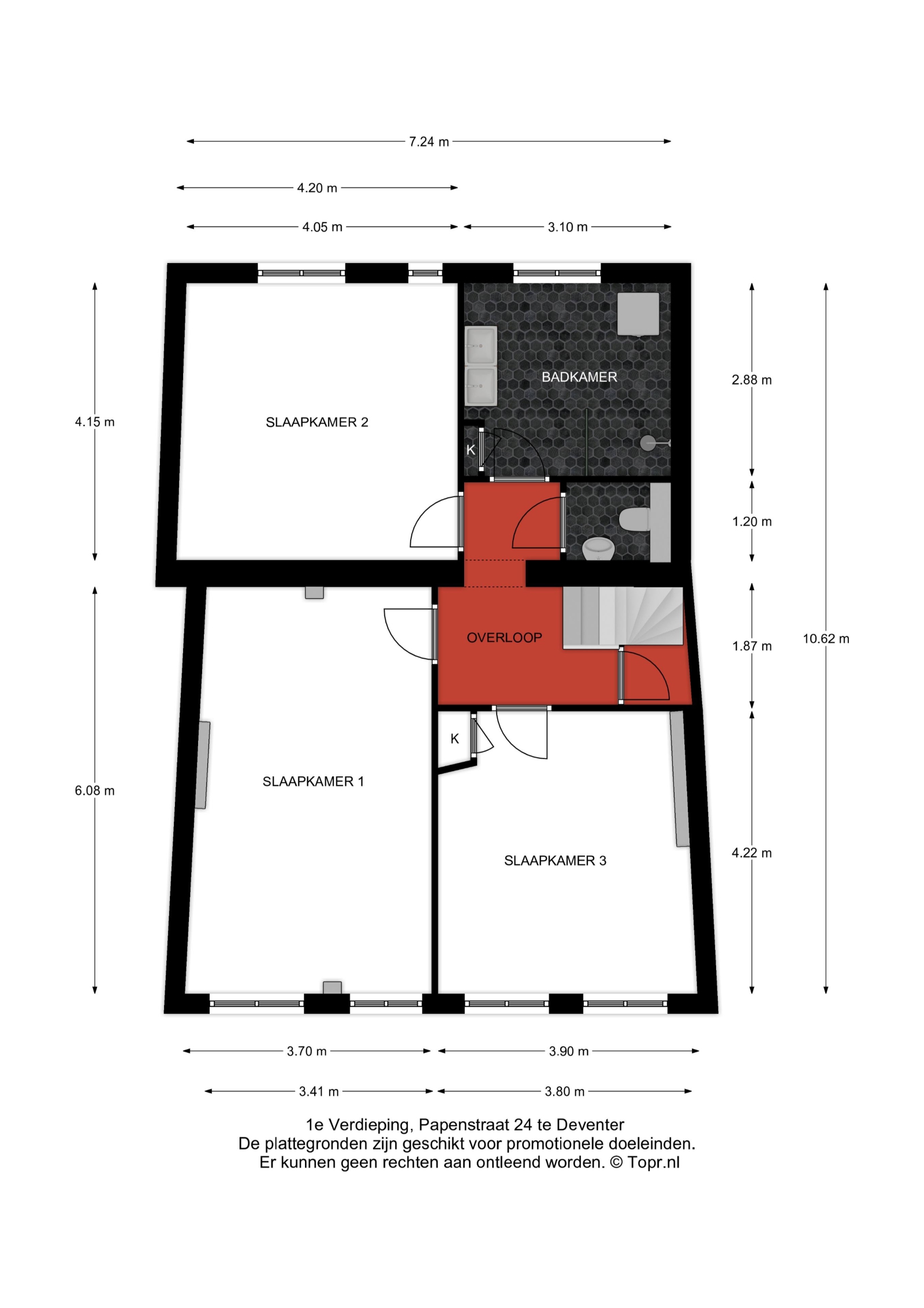
Grenzend aan de zitkamer bevindt zich een tussenhalletje met toilet en de trapopgang naar de eerste verdieping.
De overloop geeft toegang tot drie ruime slaapkamers van respectievelijk 21, 18 en 14 m2 groot , een apart toilet en een badkamer met inloopdouche, dubbele wastafel met meubel, bergkast en aansluiting voor de wasmachine.
Via een vaste trap is de zeer ruime zolder te bereiken.
De zolder is alleen te gebruiken als bergruimte en niet bestemd als verblijfsruimte.
In de achtertuin is een overdekte fietsenstalling aanwezig, behorende bij Papenstraat 26, waar huurders hun fietsen kunnen stallen.

