Rijkmanstraat 39 - Deventer
Verhuurd
Mooie bovenwoning met uitzicht op het Bergschild.
De ingang van de woning bevindt zich aan de Rijkmanstraat en wordt gedeeld met nr. 37.
Indeling:
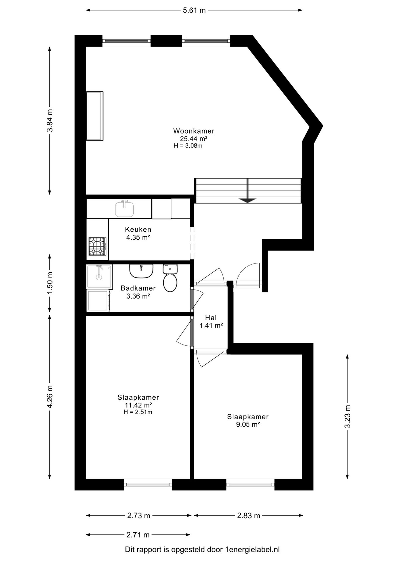
Trap naar verdieping, hal, mooie lichte woonkamer met uitzicht op het Bergschild. Dichte keuken voorzien van gaskookplaat, afzuigkap, oven en koel-vriescombi.
De badkamer wordt vernieuwd en uitgerust met een wastafelmeubel, een douchehoek, toilet en wasmachineaansluiting.
Aan de achterzijde liggen twee slaapkamers.
De woning heeft een zeer ruime bergzolder, bereikbaar via een vlizotrap. De zolderberging is niet geschikt als kamer of leefruimte.
In het kader van verduurzaming zal de zoldervloer worden geïsoleerd, wat zorgt voor extra comfort in het appartement.
Huurder mag gebruik maken van de algemene fietsenberging in de kelder van de Menstraat.
De woning komt beschikbaar per ca. 1 februari 2026 (exacte datum nog nader te bepalen)

